Menu główne

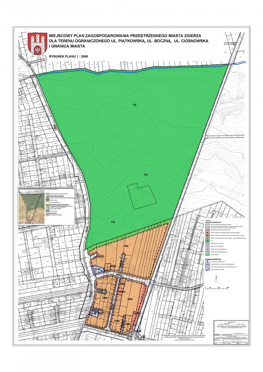
Plan miejscowy dla terenu ograniczonego ul. Piątkowską, ul. Boczną, ul. Ciosnowską i granicą miasta

Miejscowy Plan Zagospodarowania Przestrzennego
Data publikacji: 
01.12.2021
Plan miejscowy dla terenu ograniczonego ul. Piątkowską, ul. Boczną, ul. Ciosnowską i granicą miasta

Projekt miejscowego planu zagospodarowania przestrzennego dla terenu ograniczonego ul. Piątkowską, ul. Boczną, ul. Ciosnowską i granicą miasta dostępny do publicznego wglądu od środy 08.12.2021 r. 

Projekt wraz z prognozą oddziaływania na środowisko dostępny będzie do publicznego wglądu w dniach od 8 grudnia 2021 r. do 31 grudnia 2021 r. w siedzibie Urzędu Miasta Zgierza (95-100 Zgierz, plac Jana Pawła II 16) w godzinach pracy urzędu. 

Dyskusja publiczna nad przyjętymi w projekcie planu rozwiązaniami odbędzie się w dniu 21 grudnia 2021 r. (wtorek) o godz. 17:00 w siedzibie Urzędu Miasta Zgierza (plac Jana Pawła II 16 w sali nr 114). 

Zgodnie z art. 18 ust. 1 ustawy z dnia 27 marca 2003 r. o planowaniu i zagospodarowaniu przestrzennym, każdy, kto kwestionuje ustalenia przyjęte w projekcie planu może wnieść uwagi do projektu planu miejscowego. 

Uwagi należy składać na piśmie do Prezydenta Miasta Zgierza z podaniem imienia i nazwiska lub nazwy jednostki organizacyjnej i adresu, oznaczenia nieruchomości, której uwaga dotyczy w nieprzekraczalnym terminie do dnia 14 stycznia 2022 r. 

Źródło: Urząd Miasta Zgierza

Copyright © 2016. All Rights Reserved by Miasto Zgierz

Created by Logo firmy VobacomVobacom

Ważne komunikaty

30473
Usuń

Nowa lokalizacja obsługi klientów Inspektoratu ZUS w Zgierzu

Od 7 lipca 2025 r. nowa siedziba Inspektoratu ZUS w Zgierzu: ul. 3 Maja 4 Wejście do nowego budynku zgierskiego ZUS znajduję się w podwórzu (od...
13467
Usuń

Ceny wody i ścieków w Zgierzu

Aktualne stawki opłat za zbiorowe zaopatrzenie w wodę i zbiorowe odprowadzanie ścieków przez "Wodociągi i Kanalizacja-Zgierz" Sp. z o. o. obowiązują...
10697
Usuń

Odpady komunalne: harmonogramy odbioru, deklaracje i stawki

Harmonogramy odbioru odpadów: 
17413
Usuń

Godziny obsługi interesantów UMZ i USC

Urząd Miasta Zgierza (UMZ - pl. Jana Pawła II 16, ul. ks. J. Popiełuszki 3a, ul. ks. Sz. Rembowskiego 1) i Urząd Stanu Cywilnego (USC - ul. 1. Maja...
14116
Usuń

Zagubione zwierzęta, zwierzęta do adopcji

Bezdomne zwierzęta, w szczególności psy i koty wyłapywane na terenie Gminy Miasto Zgierz przewożone są do Schroniska JASIONKA (miejscowość Jasionka...
4942
Usuń

Dyżury aptek

Apteka całodobowa "U DOMINIKA" (ul. Lechonia 2 - tel. 42 716 52 30) dyżur pełni w dni powszednie, soboty, niedziele i święta. Godziny pracy...
Facebook
YouTube
Google+
RSS